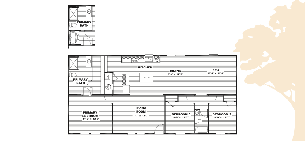
Cedar / 28 x 56 / 3 Bed 2 Bath w/ DEN (1,475 Sq Ft)

Home Information:

$69,100

TRU Origin

28′ x 56′

3 Bed 2 Bath w/ DEN

1,475 Sq Ft

Low Price Guarantee!

Call (321) 325-6470

REQUEST A CALL BACK ON THIS HOME:

Complete our form and we will contact you by phone or email ASAP to help you choose the home for you.