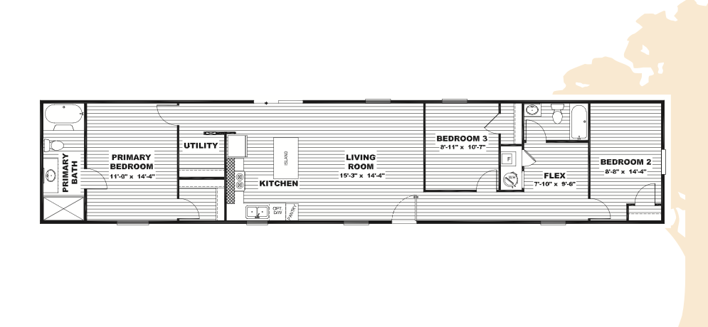
TRU Single Section The Sensation by TRU The Home shown on this 3D tour may be equipped with Factory and/or Dealer installed options.
The Home shown on this 3D tour may be equipped with Factory and/or Dealer installed options.
Complete our form and we will contact you by phone or email ASAP to help you choose the home for you.
Wallboard Homes
Our Price: $87,300
Their Price: $90,800
Our Price: $87,900
Our Price: $83,100
Their Price: $85,200
Our Price: $78,300
Their Price: $82,300