Low Price Guarantee!
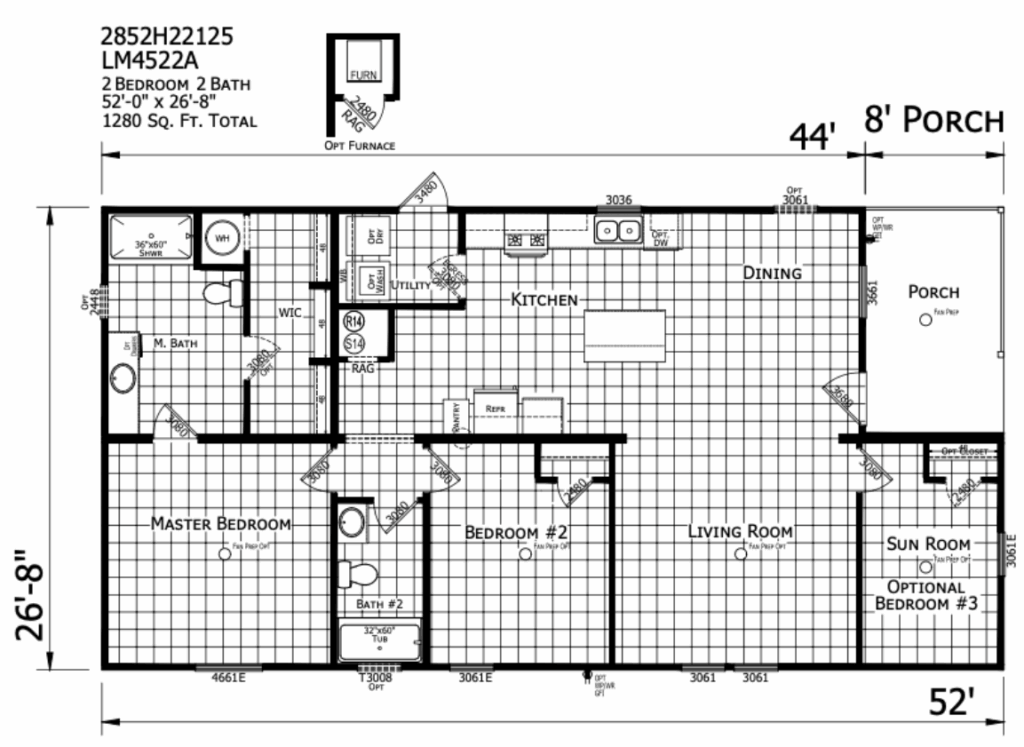
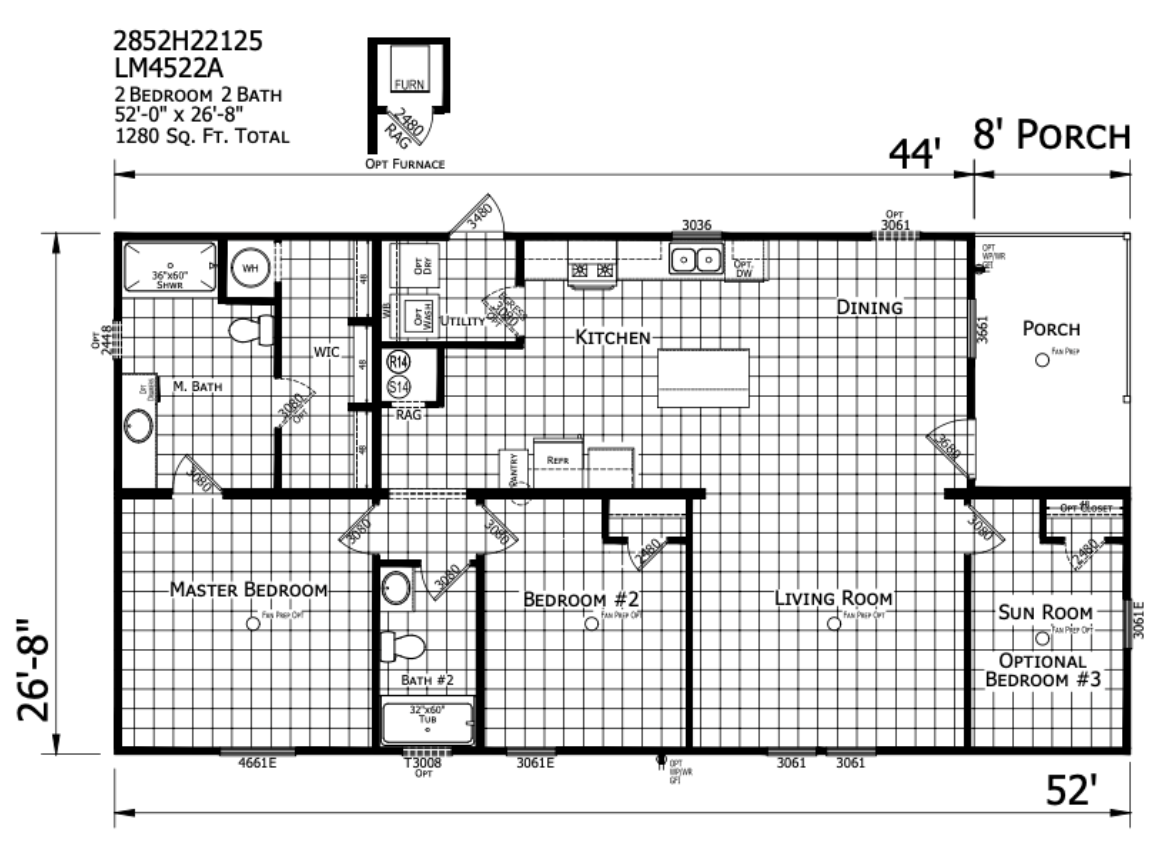
Drywall 24 x 52 3 Bed 2 Bath Manufactured Home Tour | Full Home Tour | FVH (2025) ???? Looking for the perfect combination of spacious design and practical features in your next home? You’re in the right place! Welcome to Florida Value Homes, where we proudly showcase the best in factory-built and modular homes.
???? Looking for the perfect combination of spacious design and practical features in your next home? You’re in the right place! Welcome to Florida Value Homes, where we proudly showcase the best in factory-built and modular homes.
Forest Manor 24 x 52 Matterport 3D Showcase.
Matterport 3D Showcase.
Complete our form and we will contact you by phone or email ASAP to help you choose the home for you.
Wallboard Homes
Our Price: $87,300
Their Price: $90,800
Our Price: $87,900
Our Price: $83,100
Their Price: $85,200
Our Price: $78,300
Their Price: $82,300