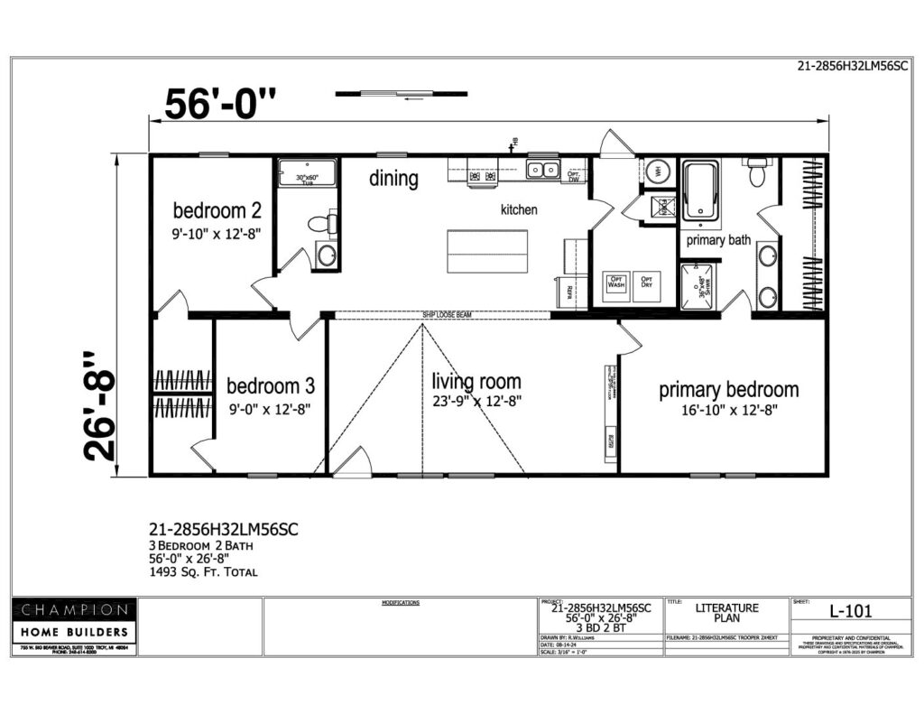
Com / 28 x 56 / 3 Bed 2 Bath (1,493 Sq Ft)

Home Information:

$83,750

Champion Foundation Limited

28′ x 56′

3 Bed 2 Bath

1,493 Sq Ft

Low Price Guarantee!

Call (321) 325-6470

REQUEST A CALL BACK ON THIS HOME:

Complete our form and we will contact you by phone or email ASAP to help you choose the home for you.